Local 80+100- 3700 Hamel - À louer
| Numéro de l'annonce | 9306 |
|---|---|
| ID | N/D |
| Prix | 123 456,00$/ - |
| Pièces | 1 |
| Type | Bureaux |
| Catégorie | N/D |
| Taille du lot | - |
|---|---|
| Année de construction | - |
| Superficie | 2 346,00pi2 |
| Étages | 1 |
| Stationnement | Disponibles |
| Sous-location? | Non |
Description
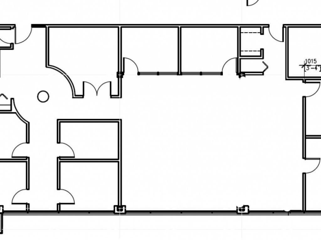
Espace de bureau à louer en 2e étage – Local 100+80 – Les Saules
Situé au 3700 boulevard Wilfrid-Hamel, Québec, cet espace de bureau d’environ 2 346 pi², résultant de la fusion des locaux 80 et 100, offre une configuration complète et extrêmement polyvalente, idéale pour une entreprise en croissance ou une équipe nécessitant à la fois collaboration et confidentialité.
L’aménagement propose une combinaison équilibrée entre aires ouvertes et bureaux fermés, permettant de répondre à une grande variété de besoins opérationnels. On y retrouve une spacieuse aire ouverte, parfaite pour l’installation de postes de travail, une zone de réception ou un espace collaboratif dynamique, favorisant la communication et l’efficacité des équipes.
Le local comprend également plusieurs bureaux fermés, offrant des espaces calmes pour les rencontres, la gestion ou le travail nécessitant de la concentration. Une salle de conférence fermée s’ajoute à l’ensemble, idéale pour les réunions d’équipe, les présentations ou les rencontres clients.
Deux cuisinettes sont accessibles dans l’espace, offrant un confort accru pour les employés, en plus de zones de rangement pratiques pour les opérations quotidiennes. L’organisation générale du local assure une circulation fluide et une utilisation optimale de chaque section.
Situé au 2e étage, cet espace bénéficie d’un environnement professionnel, calme et bien structuré, tout en profitant d’un emplacement stratégique sur le boulevard Wilfrid-Hamel, un axe majeur de Québec reconnu pour son accessibilité et sa proximité avec les principaux services et axes routiers.
Cette opportunité est particulièrement intéressante pour une entreprise souhaitant regrouper ses équipes dans un seul espace cohérent, tout en conservant une flexibilité d’aménagement et une image professionnelle.
Fonctionnalités
Le local est clef en main pour un espace de bureau
Quelques bureaux fermés
Cuisinette ou salle de conférence
Il a comme avantage les points suivants
Zone de stationnement facile pour le locataire
Prise de possession rapide possible
Secteur Les Saules de la ville
Secteur intéressant pour :
Proximité de l’autoroute Henri-IV (73)
Proximité de L’autoroute Capitale
Proximité de l’autoroute Robert-Bourassa
Caractéristiques
- Disponibilité
- Proximité des autoroutes
- Salles de toilette
- Stationnement
- Transport en commun






