BUREAUX STE-FOY - À louer
| Numéro de l'annonce | 9189 |
|---|---|
| ID | N/D |
| Prix | - |
| Pièces | 0 |
| Type | Bureaux |
| Catégorie | N/D |
| Taille du lot | - |
|---|---|
| Année de construction | - |
| Superficie | 800,00pi2 |
| Étages | 2 |
| Stationnement | Disponibles |
| Sous-location? | Non |
Description
Plaza Laval – Un immeuble bien établi au cœur de Sainte-Foy
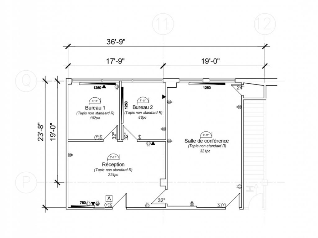
BUREAU 263
SUPERFICIE 800 PIEDS CARRÉS – ACCEUIL, 2 BUREAUX FERMÉS ET UNE SALLE DE CONFÉRENCE
Situé au 2750 chemin Sainte-Foy, Plaza Laval est un immeuble commercial bien en vue, en plein cœur de l’un des secteurs les plus dynamiques de Sainte-Foy. Facilement accessible grâce à sa proximité des grands axes routiers, du réseau de transport en commun et à quelques minutes des principaux centres commerciaux, l’immeuble bénéficie d’un emplacement stratégique pour les entreprises souhaitant établir leur présence dans un environnement actif et bien desservi.
Plaza Laval accueille une diversité de locataires professionnels, notamment des commerces de détail, cliniques de soins, bureaux de services et professionnels de la santé, ce qui en fait un carrefour de services de proximité pour la population du secteur.
Un secteur à fort potentiel
Le quartier de Sainte-Foy est reconnu pour sa forte densité résidentielle, la présence de nombreuses institutions, et un environnement commercial florissant. On y retrouve de grandes entreprises, des établissements gouvernementaux, des cliniques, des restaurants, des centres d’affaires ainsi que des centres d’enseignement comme l’Université Laval. Cette vitalité économique attire une clientèle variée et fidèle, composée de professionnels, d’étudiants, de familles et de résidents du secteur.
Un emplacement de choix pour les affaires
Plaza Laval est l’endroit idéal pour toute entreprise cherchant à s’installer dans un immeuble reconnu, accessible, et situé dans un secteur en constante effervescence. Son environnement professionnel, combiné à la diversité des services à proximité, en fait une adresse stratégique pour développer votre activité.
Contactez-nous dès maintenant pour en savoir plus sur les espaces disponibles à Plaza Laval – une opportunité d’affaires au cœur de Sainte-Foy.
Fonctionnalités
Le local est clef en main
2 Bureaux fermés
Salle de conférenc
Zone d’accueil
Il a comme avantage les points suivants
Zone de stationnement pour le locataire
Prise de possession rapide possible
Secteur Ste-Foy de la ville
Secteur intéressant pour :
Proximité de l’autoroute Henri-IV (73)
Proximité du boulevard Laurier
Au cœur de Ste-Foy
Grille de zonage :
https://carte.ville.quebec.qc.ca/GrillesZonage/HandlerZonage.ashx?32014Mc
Ce n’est pas le local idéal ?
Contactez nous, plusieurs locaux ne sont pas affichés
Chez Location BCI, nous sommes spécialisés dans la location de locaux commerciaux adaptés aux besoins de votre entreprise. Que vous soyez à la recherche d’un local à louer, d’un bureau à louer, ou d’un local industriel à louer, notre équipe professionnelle est là pour vous accompagner et cela rapidement.
Si le local que vous consultez ne correspond pas parfaitement à vos attentes, pas de souci! Nous mettons tout en œuvre pour trouver le meilleur espace pour votre entreprise grâce à notre expertise, notre réseau et notre rapidité d’action.
Notre mission est simple : vous offrir un service personnalisé, efficace et axé sur vos besoins spécifiques, afin de garantir une expérience de location fluide et sans tracas. Avec Location BCI, vous avez la certitude de collaborer avec une agence professionnelle qui comprend l’importance d’un local parfaitement adapté à votre réussite.






