Entrôt industriel à louer | Laval | 2 360 PI² - À louer

Numéro de l'annonce 9158
ID N/D
Prix -
Pièces 1
Type Entrepôt/Showroom
Catégorie N/D
Taille du lot -
Année de construction -
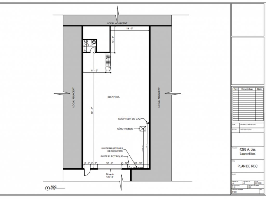
Superficie 2 360,00pi2
Étages 1
Stationnement -
Sous-location? Non

Description

ENTREPÔT À LOUER À LAVAL – 2360 PI²

Contactez François au 438-806-9379 pour réserver votre espace commercial dès maintenant.

 

Caractéristiques de la construction :

• Disponibilité : 1er mars 2026

• Superficie : 2360 pi²

• Type de location : entrepôt avec porte de garage

• Stationnement extérieur : disponible

 

Emplacement stratégique

Plan A Immobilier propose des bureaux à Laval, idéalement situés le long de l’autoroute 15, à quelques minutes de l'A440 et du boulevard Curé-Labelle (route 117). Cette localisation stratégique permet un accès rapide aux secteurs de Laval, Montréal, Mirabel et Dorval.

 

Espaces modulables et adaptés

Nos locaux sont conçus pour accueillir des entreprises de l’industrie légère et du secteur commercial.

Avec plus de 25 ans d’expérience et 18 complexes industriels réalisés, nous sommes le partenaire idéal pour accompagner la croissance de votre entreprise.

 

Pour plus d’information, contactez François dès maintenant au 438-806-9379.

 

*Adresse civique à titre indicatif seulement, sujette à changement sans préavis.

 

Saisissez cette opportunité de vous implanter à Laval, Montréal, Boisbriand, Saint-Eustache, Deux-Montagnes, Sainte-Thérèse, Rosemère, Bois-des-Filion, Terrebonne, Dollards-des-Ormeaux, Pierrefonds-Roxboro.

Caractéristiques

  • Electricité
  • Hauteur libre (plafond)
  • Livraison/Expédition
  • Proximité des autoroutes
  • Salles de toilette
  • Système d’alarme