Local industriel ou commercial - Château-Richer - À louer

Numéro de l'annonce 8966
ID N/D
Prix -
Pièces 0
Type Espace industriel
Catégorie N/D
Taille du lot -
Année de construction -
Superficie 1 428,00pi2
Étages 0
Stationnement Disponibles
Sous-location? Non

Description

Dans un immeuble qui est en façade du boulevard Sainte-Anne, ce local à vocation commerciale et industrielle se distingue par ses hauts plafonds, ses 2 grandes portes de garage et d’une accessibilité remarquable sur le boulevard Sainte-Anne (route 138), un axe très fréquenté reliant Québec à la Côte-de-Beaupré.
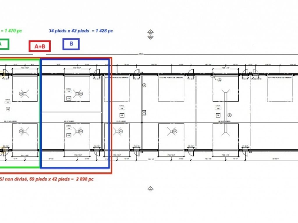
Avec une superficie d’environ 1 428 p.c., ce local est actuellement la partie arrière d’un espace d’environ 2 898 p.c., divisible en deux sections indépendantes :
- La partie avant (A) (environ 1 470 p.c.) et la partie arrière (B) (environ 1 428 p.c.).

Cette configuration possible permet une flexibilité selon vos besoins, pouvant s’adapter parfaitement aux besoins de votre entreprises.

Fonctionnalités
● Superficie du local B est d’environ 1428 pc
● Superficie de la section A et B est d’environ 2 898 p.c divisible
● Plafonds hauts permettant un grand dégagement
● 2 grandes portes de garage
● Affichage possible dans le pylône

Il a comme avantage les points suivants
● Local modulable : possibilité de louer l’ensemble ou une seule section
● Bâtiment récent et moderne
● Accès facile pour la manutention et les livraisons
● Bonne visibilité sur un axe routier achalandé

Secteur intéressant pour :
● Situé directement sur le boulevard Sainte-Anne (route 138)
● À proximité de Boischatel, Beaupré et Sainte-Anne-de-Beaupré
● Accès rapide à la région de Québec
● Secteur en développement offrant un bon potentiel commercial

Ce n’est pas le local idéal ?
Contactez nous, plusieurs locaux ne sont pas affichés


Chez Location BCI, nous sommes spécialisés dans la location de locaux commerciaux adaptés aux besoins de votre entreprise. Que vous soyez à la recherche d’un local à louer, d’un bureau à louer, ou d’un local industriel à louer, notre équipe professionnelle est là pour vous accompagner et cela rapidement.
Si le local que vous consultez ne correspond pas parfaitement à vos attentes, pas de souci! Nous mettons tout en œuvre pour trouver le meilleur espace pour votre entreprise grâce à notre expertise, notre réseau et notre rapidité d’action.
Notre mission est simple : vous offrir un service personnalisé, efficace et axé sur vos besoins spécifiques, afin de garantir une expérience de location fluide et sans tracas. Avec Location BCI, vous avez la certitude de collaborer avec une agence professionnelle qui comprend l’importance d’un local parfaitement adapté à votre réussite.
Contactez-nous dès aujourd’hui pour explorer nos options de locaux commerciaux à louer à Québec et laissez-nous vous guider vers l’espace idéal pour votre entreprise.

Caractéristiques

  • Stationnement