Local commercial à Ville Saint-Laurent - À louer
| Numéro de l'annonce | 8939 |
|---|---|
| ID | N/D |
| Prix | 24,00$/ pied carré |
| Pièces | 0 |
| Type | Commerce (rue) |
| Catégorie | N/D |
| Taille du lot | - |
|---|---|
| Année de construction | - |
| Superficie | 2 708,00pi2 |
| Étages | 0 |
| Stationnement | - |
| Sous-location? | Non |
| Fiche 1 | Télécharger |
|---|
Description
Faits saillants
Centre commercial stratégiquement situé à l’angle du boulevard Marcel-Laurin et du boulevard Côte-Vertu à Ville Saint-Laurent, voisin de la Banque Laurentienne, du restaurant Rayan et à proximité de plusieurs autres commerces influents. Ce site bénéficie d’un flux constant de circulation, d’une excellente accessibilité grâce aux transports en commun, et d’un stationnement abondant, idéal pour attirer une clientèle variée.
Situé dans une zone à forte densité démographique et commerciale, cet emplacement est au cœur d’un environnement dynamique et attrayant, propice à la réussite des entreprises qui souhaitent s’y établir. La localisation offre un mélange unique de résidents, de travailleurs et de visiteurs, faisant de ce site un choix stratégique pour les grandes chaînes, détaillants et entreprises de services.
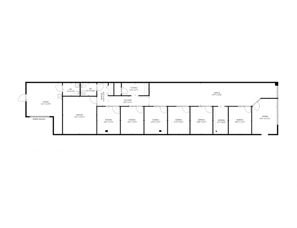
Un local commercial de 2 708 pi² est actuellement disponible. Il se distingue par une façade de 24 pieds offrant une excellente visibilité, une porte de livraison au niveau du sol accessible via la ruelle, une hauteur libre de plus de 15 pieds et une profondeur de plus de 113 pieds.
Ce local a été anciennement occupé par la Banque Nationale pour un usage de bureaux. Il s’agit d’une portion de leur espace maintenant cédée et disponible à la location. Une nouvelle façade sera aménagée et une adresse distincte sera attribuée à ce local.
Détails de la propriété
Loyer de base : 24.00 $ / PI.CA
Frais additionnel : 16.00 $ / PI.CA (ESTIMÉ 2025)
Date de disponibilité : Maintenant






